top of page

Lida Kullar - Ombyggnad Seniorboende

Bild 4.png
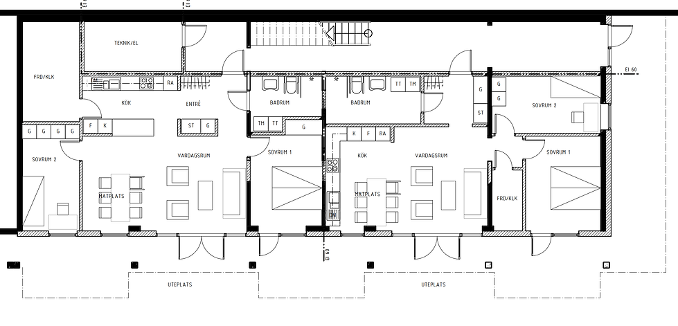
Plan 1.png
Plan 2.png
Plan 3.png
Bild 1.png
Bild 2.png
Bild 3.png
Bild 4.png
Bild 5.png

< FÖREGÅENDE

© 2024 by Vincent Cuclair. Powered and secured by Wix

Favicon.ico
bottom of page